Comprehensive Design Examples - A Glass Porch

Structure

x

Skin

x

Services

Nov 19, 2009

A link to the description of the porch on the office website - Select ‘Residential,’ then ‘All Glass Structure, Hamstead.’http://www.rickmather.com/

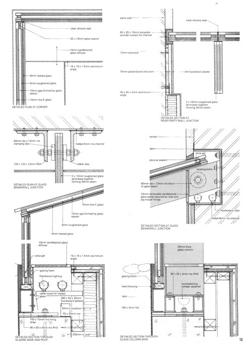
Illustrations from “Working Details 3 - The Architect’s Journal”

Rick told me about this project over a pint at a pub in John Smith’s Square.  Great story, great project, great pub.

 

The Boston Architectural College - Designing Architectural Details

John H. Pilling

Jennifer McGrory

 
Ideas and Examples SummaryIBS_Ideas_and_Examples_2.html